Enjoy low-maintenance, contemporary living in a new development completing Nov 2026, close to local amenities, with an open-plan kitchen/living area, two bedrooms, one bathroom and single carport.
To be developed, with completion date expected November 2026
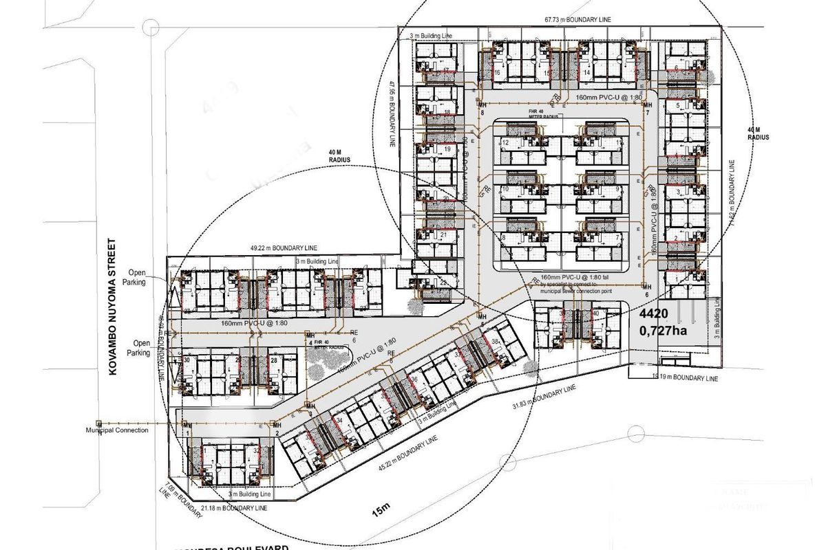
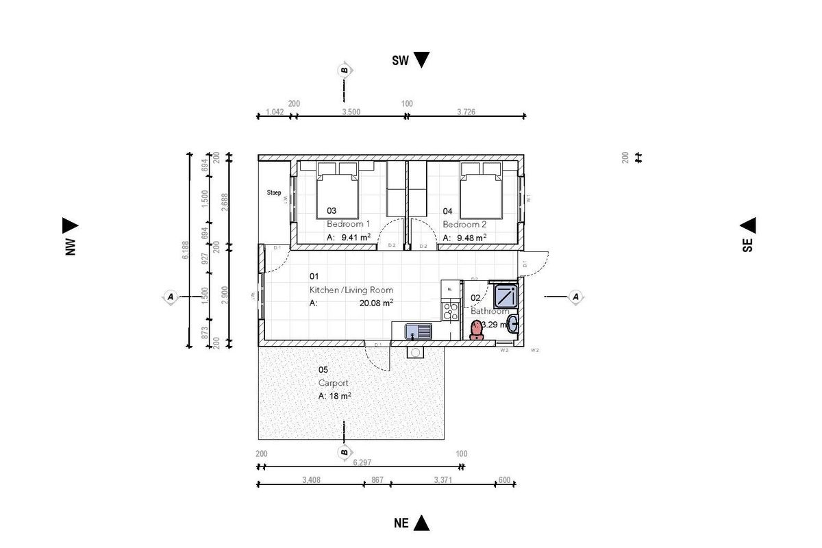
Units offer:
* Reception Porch
* Living area
* Kitchen, open plan with living area
* 2 Bedrooms
* Single Carport
* Unit size: 72.23 (including porch and carport)
Price: N$777 000
Listed for sale at N$777,000
MyProperty Benchmark Indicator: Data-driven comparison vs similar active properties
Based on 45 listings in Swakopmund (town)
Insight
Priced below the median for similar properties in the area. On a price-per-m² basis, it is 20% below the median. Floor size is 29% smaller than typical for similar homes.
Similar properties pricing
Key differences
Affordability
N$ 7,627 / month
Estimated bond repayment
20 years · 10.25% · 0% deposit
Market depth
45 similar listings
High similar-home inventory town-wide (Swakopmund)
Median time on market: 136 days
* Insights are based on current active listings (excludes sold data) and may change. This is not a valuation or appraisal. Smart Property Insights Model v1.0
Mondesa offers a vibrant community atmosphere with a mix of residential areas and local businesses, providing a convenient and culturally rich living experience for its residents.
* Distances and amenities are approximate.