Family-focused living steps from Pro-Ed Academy, with modern open-plan spaces, a private courtyard-access master suite — includes three en-suite bedrooms and double garage.
Located on a corner stand in the vicinity of Pro-Ed Academy, this new dwelling is scheduled to be ready for occupation at the end of April 2026.
Well priced, practical, modern and solidly constructed by a renowned developer.
All the bedrooms are en-suite for extra convenience.
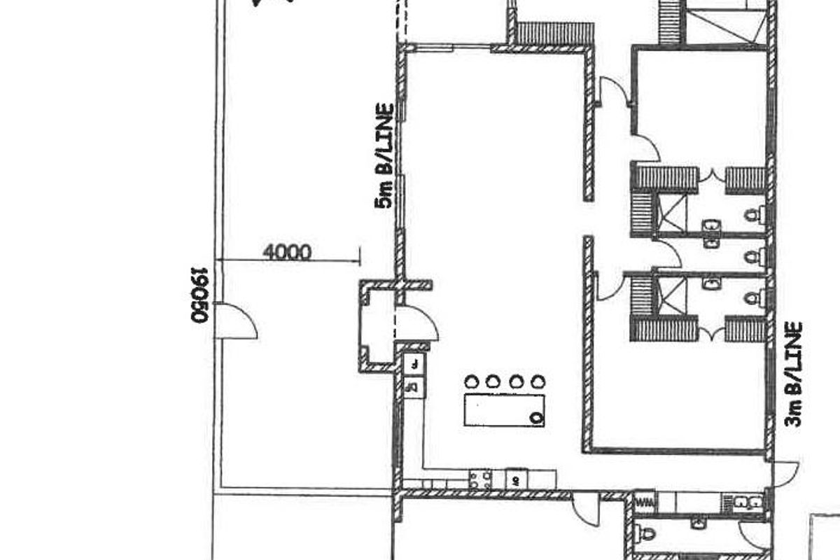
The floor plan is attached to the listing.
Property Features:
- 3 bedrooms (all en-suite, the master bedroom with a sliding door leading to the courtyard)
- 3 bathrooms (one full bathroom)
- Open-plan living area/dining area/kitchen with an island
- Outdoors BBQ
- Double garage
- Scullery
- Alarm system and beams
Erf Size: 538 m2
Floor Size: 220 m2
PRICE: N$3,180,000
Listed for sale at N$3,180,000
MyProperty Benchmark Indicator: Data-driven comparison vs similar active properties
Based on 34 listings in Ocean View
Insight
Priced below the median for similar properties in the area. On a price-per-m² basis, it is 9% above the median. Floor size is 28% smaller than typical for similar homes.
Similar properties pricing
Key differences
Affordability
N$ 31,216 / month
Estimated bond repayment
20 years · 10.25% · 0% deposit
Market depth
34 similar listings
Medium similar-home inventory in Ocean View
Median time on market: 141 days
* Insights are based on current active listings (excludes sold data) and may change. This is not a valuation or appraisal. Smart Property Insights Model v1.0
Ocean View offers a tranquil residential environment with modern homes and convenient access to Swakopmund's amenities, appealing to families and individuals seeking a relaxed coastal lifestyle.
* Distances and amenities are approximate.