Open-plan family living with a dedicated braai area and flexible office corner in a peaceful neighbourhood, set on a generous plot — three bedrooms, three bathrooms, and a triple garage.
PLOT & PLAN
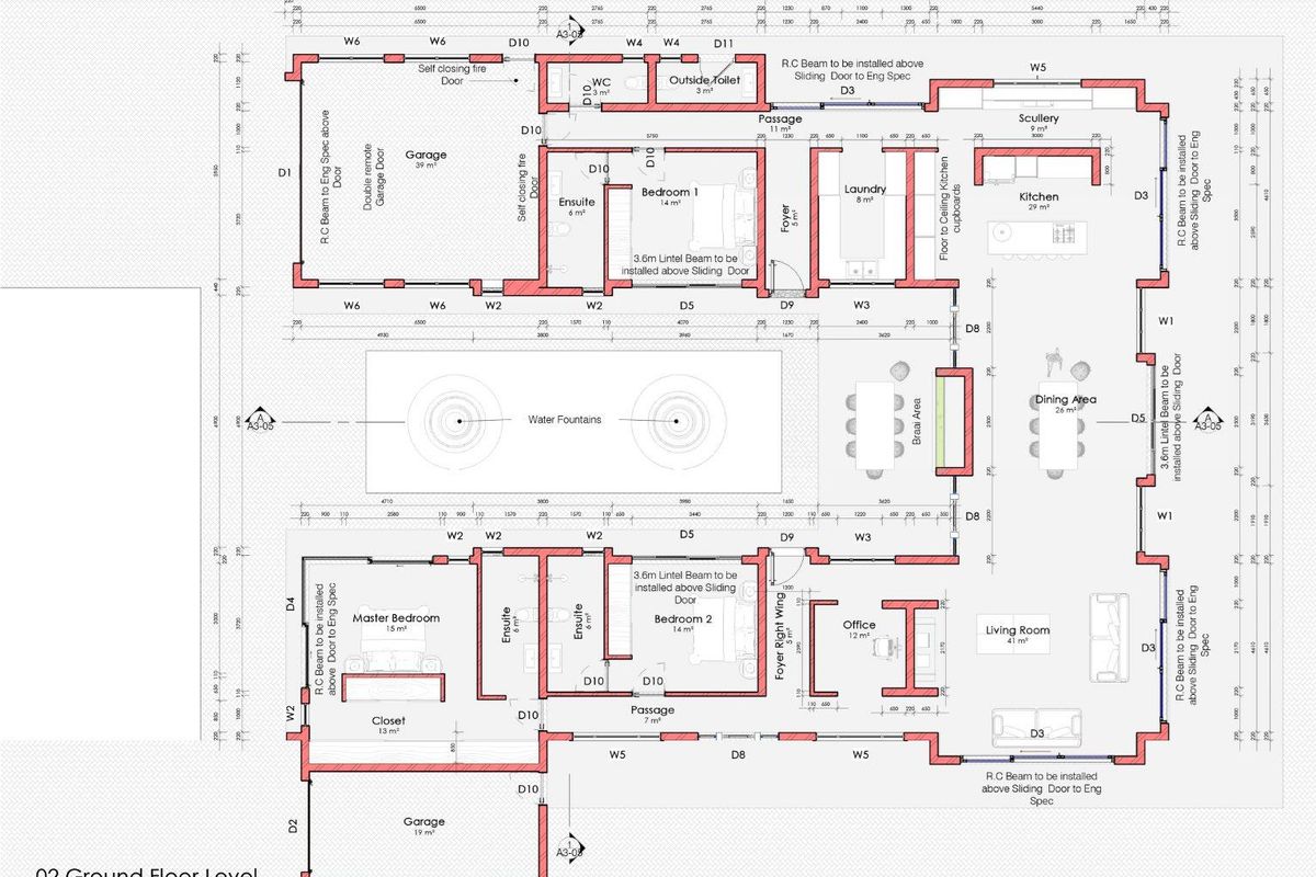
This modern design offers a thoughtfully designed layout ideal for comfortable family living.
The property features; 3 bedrooms and 3 bathrooms, including a master bedroom with a private en-suite bathroom.
The home boasts an open-plan design that seamlessly connects the kitchen, dining room, and living area, creating a welcoming and functional space for everyday living and entertaining. A separate scullery adds convenience and keeps the main kitchen area clutter-free.
Additional features include a dedicated office corner, perfect for working from home, as well as a braai area for outdoor entertaining. The property also includes a laundry room and an outside toilet for added practicality.
Once completed, this home will combine modern style with functional living spaces, making it an excellent choice for families or anyone seeking a well-designed, contemporary residence.
Contact Versatile today! Our team of experienced professionals are ready to assist you every step of the way, ensuring a smooth and seamless process.
Listed for sale at N$6,200,000
MyProperty Benchmark Indicator: Data-driven comparison vs similar active properties
Based on 19 listings in Rossmund Golf Resort
Insight
Priced above the median for similar properties in the area. On a price-per-m² basis, it is 19% above the median. Floor size is 10% larger than typical for similar homes.
Similar properties pricing
Key differences
Affordability
N$ 60,862 / month
Estimated bond repayment
20 years · 10.25% · 0% deposit
Market depth
19 similar listings
Medium similar-home inventory in Rossmund Golf Resort
Median time on market: 69 days
* Insights are based on current active listings (excludes sold data) and may change. This is not a valuation or appraisal. Smart Property Insights Model v1.0
Rossmund Golf Resort offers a unique residential experience centered around a world-class desert golf course, providing a tranquil and active lifestyle for golf enthusiasts and nature lovers.
* Distances and amenities are approximate.