Relaxed estate living in Elisenheim, Windhoek with flexible family layout and separate flatlet for guests or income, indoor garden and outdoor braai, plus three en‑suite bedrooms and double garage.
Modern Family Home with Flatlet in Elisenheim, Windhoek
(COMPLETION DATE END OF MAY 2026)
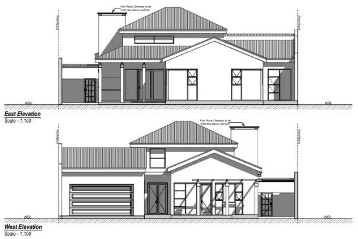
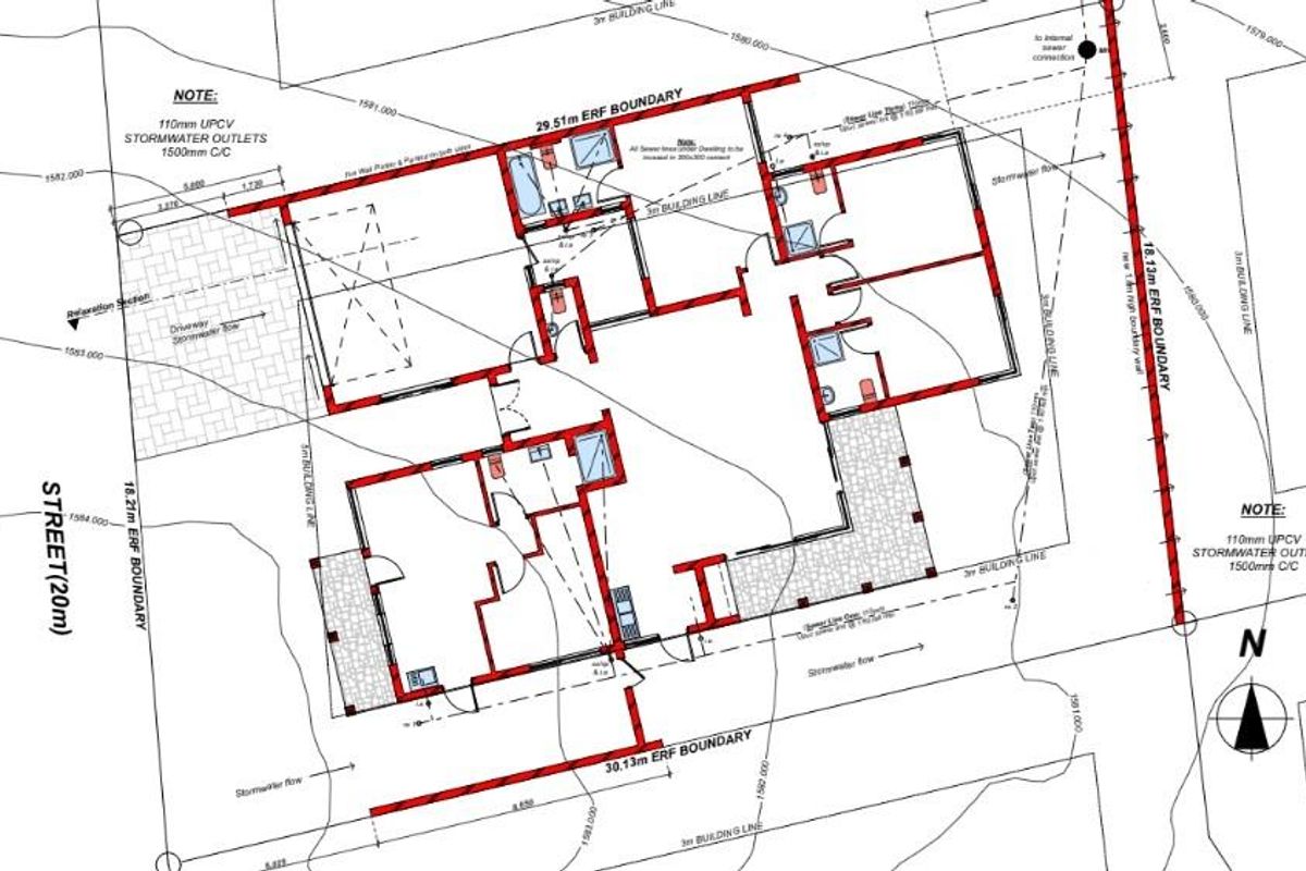
This contemporary home, situated in the highly sought-after Elisenheim Estate, offers modern design, comfortable living, and excellent additional accommodation. The property is currently under construction and scheduled for completion in March 2026.
Size Breakdown:
Main House Features:
Flatlet Features:
Additional Highlights:
This home offers stylish estate living in a peaceful environment, making it an outstanding opportunity for both homeowners and investors..
This property has a feature that is uncommon among 3-bedroom houses. Insight based on active listings currently advertised on MyProperty.
* Monthly costs are estimates and should be confirmed with the agent.
Listed for sale at N$3,890,000
MyProperty Benchmark Indicator: Data-driven comparison vs similar active properties
Based on 22 listings in Elisenheim
Insight
Priced above the median for similar properties in the area.
Similar properties pricing
Market depth
22 similar listings
Medium similar-home inventory in Elisenheim
Median time on market: 90 days
* Insights are based on current active listings (excludes sold data) and may change. This is not a valuation or appraisal. Smart Property Insights Model v1.0
Elisenheim is a developing residential area offering a modern, family-friendly environment with convenient access to Windhoek's amenities while maintaining a quieter suburban atmosphere.
* Distances and amenities are approximate.