Boost operational efficiency in Southern Industrial, steps from major transport routes — two modern warehouses offering expansive office suites, raised dispatch area and centralized water-cooling for climate control.
TWO MODERN WAREHOUSES FOR SALE - SOUTHERN IND
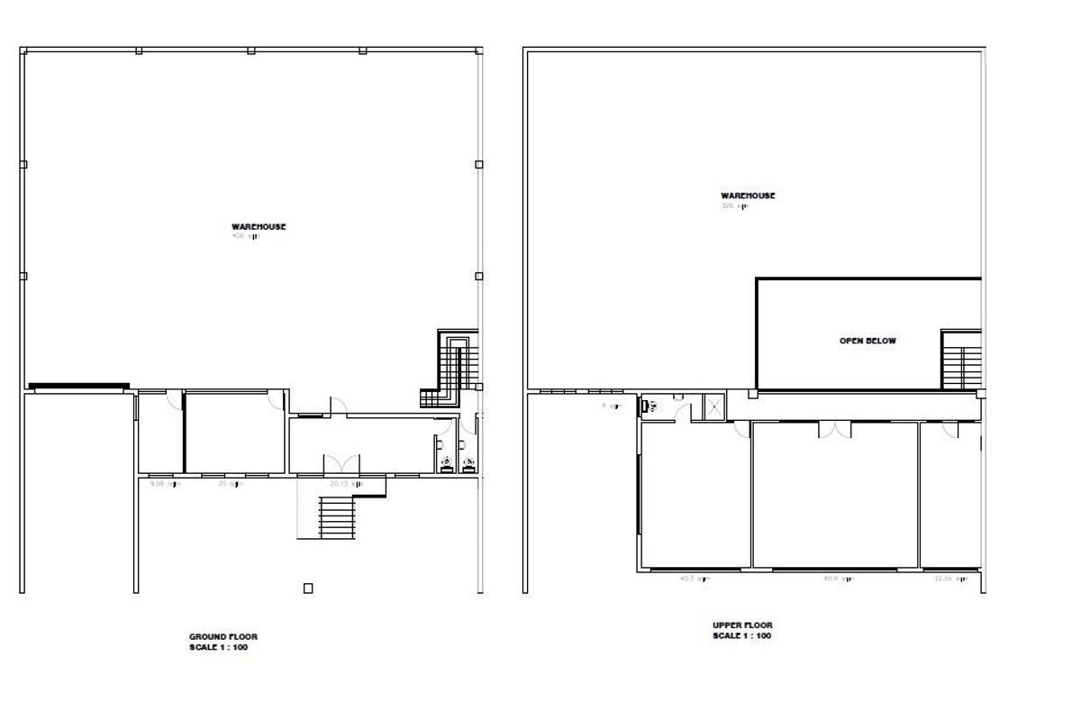
400m2 ground plus Upper Level 326m2 = 726m2 Warehouse 1
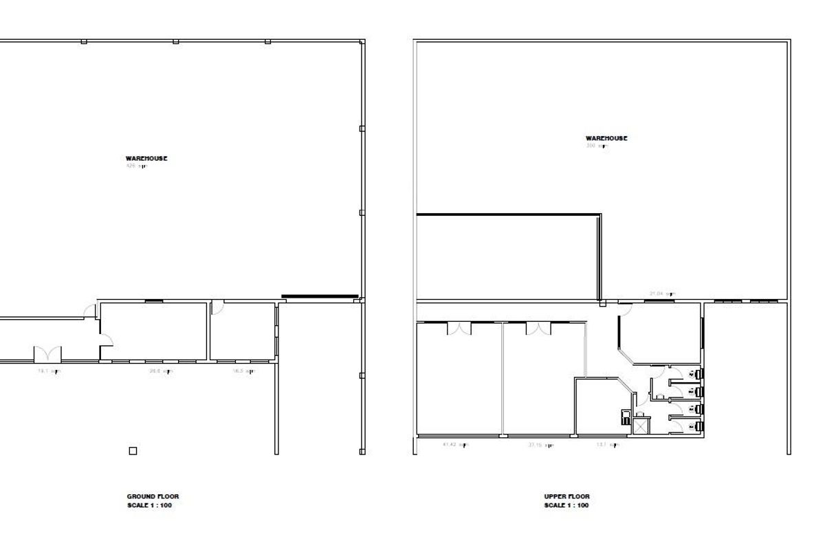
426m2 ground plus Upper Level 350m2 = 776m2 Warehouse 2
Each selling for N$ 9 500 000.00 (together N$ 18 000 000.00)
Left Hand warehouse ground level
Reception, warehouse office, Server room and 4 Offices on the upper level. Main office has shower/basin/toilet and ground floor 2 x ablution.
Right Side Warehouse - raised dispatch/receiving area (1m)
Ground level, reception, office and kitchen and upper level 5 offices, kitchen and his/her ablution and shower.
Both centralized water-cooling units.
Listed for sale at N$9,500,000
Southern Industrial Area in Windhoek is a well-established industrial hub offering a mix of manufacturing, warehousing, and distribution facilities, making it a practical location for businesses requiring industrial space and logistical access.
* Distances and amenities are approximate.