Save
Notify Similar
N$1,100,000

3 bedroom townhouse for sale in Matatura

3 Beds
2 Baths
1 Garage
93m²
Brand New 3 Bedroom Townhouse For Sale In Matatura, Swakopmund

NEW DEVELOPMENT of one-level townhouses. Practical design and modern finishes.

Property Features:

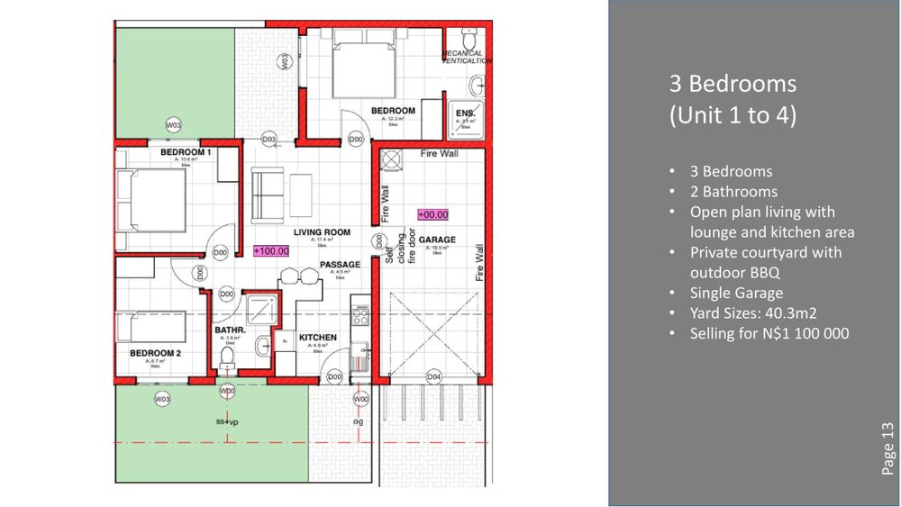
-3 bedrooms (one en-suite)

-2 bathrooms

-Single garage

-Open-plan living area/dining area/kitchen

-Own courtyard with outdoor BBQ

Choose from 2 avaiable options (depending on the yard size):

3)Units 1-4: PRICE N$1,100,000

Floor Size: 93 m2; Yard: 40 m2.

4)Unit 5: PRICE N$1,250,000.

Floor Size: 93 m2; Yard: 87 m2.

The floor plans and the site plan are attached to the listing.

There are also 2-bedroom units available for purchase in this development.

Property Type
Townhouse
Bedrooms
3
Bathrooms
2
Building Size
93m²
Living Area
1
Garages
1
Reference
2427886
Property history
Listed for sale at N$1,100,000
26 Oct 2025
Get to know Swakopmund
Swakopmund is an exquisite coastal town that will take your breath away with its splendid geographical surroundings, its foggy weather and its architectural masterpieces.
By clicking on "contact" you agree to our privacy policy
Contact Agent