Save
Notify Similar
N$1,025,000

Vacant Land Residential for sale in Okahandja Central

2,292m²
Camelthorn Estate | Vacant Erf With Approved Building Plans

FOR SALE | N$1 025 000

CAMELTHORN ESTATE, OKAHANDJA

This secure residential erf is located in the nature-rich Camelthorn Estate in Okahandja, offering peaceful bushveld living within a 24-hour monitored estate. The property provides an excellent opportunity to build your dream home in a tranquil, well-managed environment close to the Okahandja Golf Course.

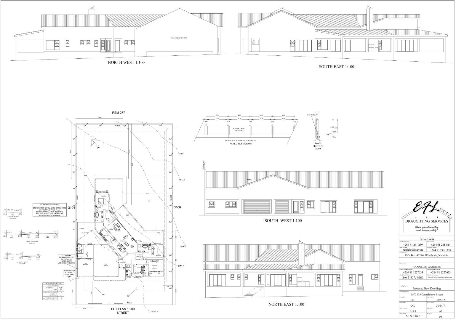
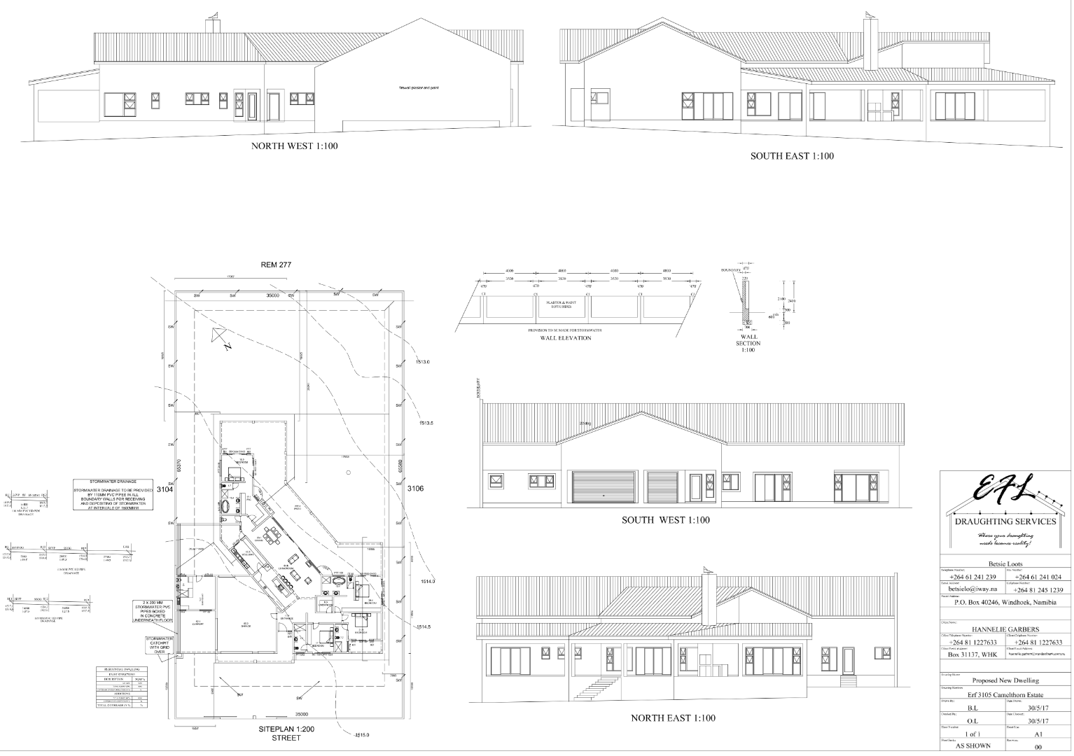
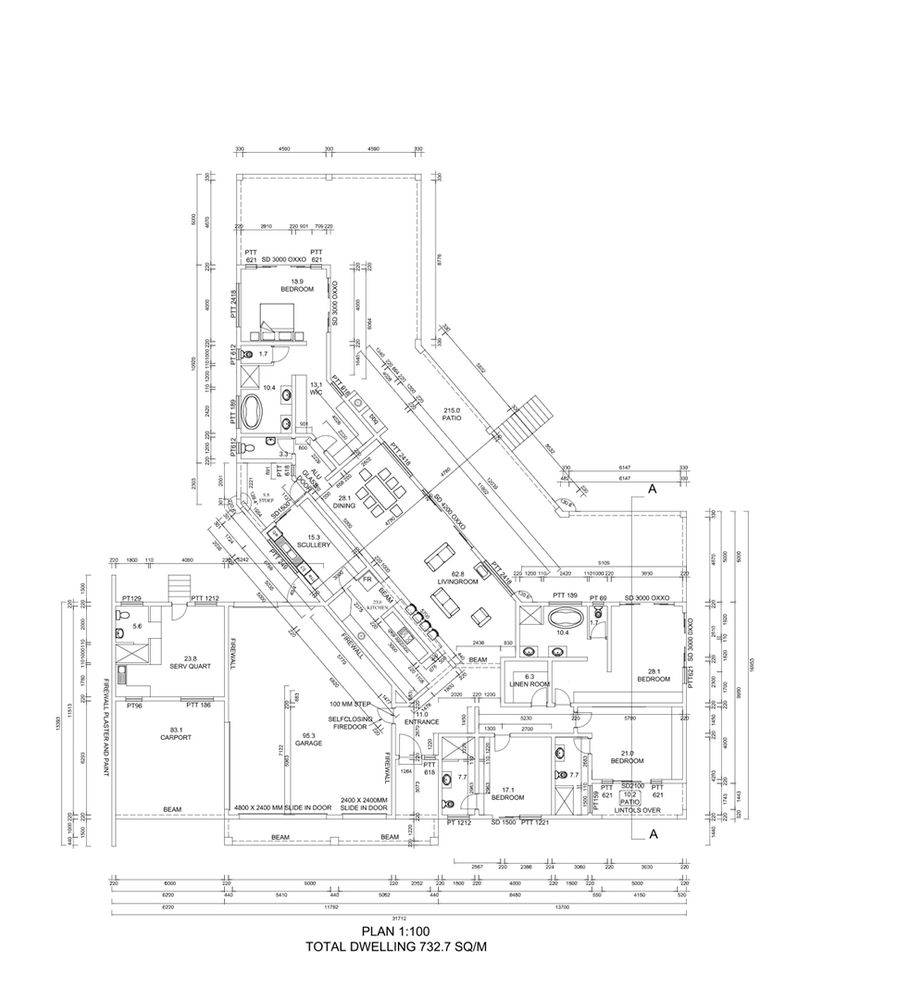
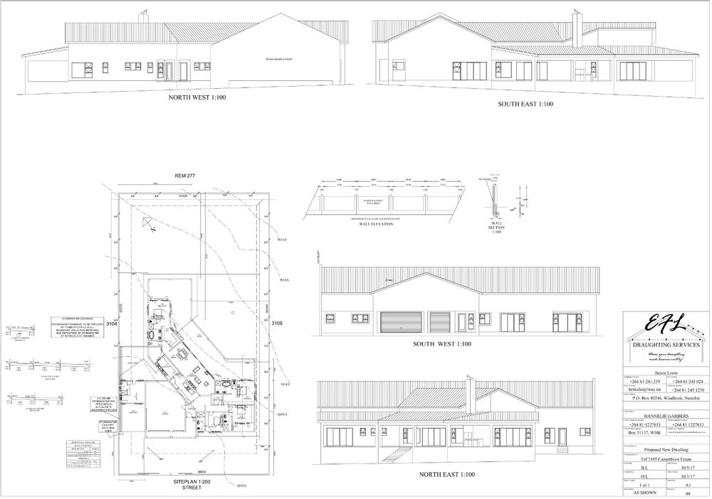
Architectural drawings for the proposed dwelling have already been completed and approved by the Municipality, with original plans available.

Key Features:

  • Vacant residential erf
  • 24-hour security estate
  • Borehole on the property
  • Approved building plans (floor plans, electrical, roof & elevations completed)
  • Secure and monitored estate living
  • Nature-rich bushveld surroundings

Property Details:

  • Property Type: Vacant Land (Residential)
  • Erf Size: 2 292 m2

Listed at: N$1 025 000

  • Municipal rates: Less than N$973 per month
  • Estate levies: N$500 per month
  • Approved municipal building plans in place
  • Secure lifestyle estate

CONTACT FOR VIEWING:

Magda | 081 127 2850

Property Type
Vacant Land Residential
Stand Size
2,292m²
Levy
N$500
Reference
2464139
Property history
Listed for sale at N$900,000
24 Jan 2026
Price increased by 13.9% to N$1,025,000
25 Jan 2026
By clicking on "contact" you agree to our privacy policy
Contact Agent